餐飲廚房多種油煙凈化器油煙排放方案
目前的住宅底商、寫字樓底商、集中商業及酒店中,均設置了大量的餐飲,作為餐飲核心的廚房,廚房的環境好壞越來越受到大家的關注,油煙就成了廚房不好解決的問題。飲食業的油煙污染已經嚴重困擾了城市居民,餐飲建筑廚房的油煙排放是一個很重要的內容,失敗的油煙排放系統,會造成整棟樓或小區都彌漫著飯菜的味道,嚴重降低了樓盤或小區的品質。
大家知道在配置油煙凈化器的時候需要看現場,根據現場的具體情況給客戶配置合理的方案,
針對不同的建筑形式及業態,餐飲廚房的油煙排放方案一般分為多種下面分別介紹這三種方案的組成、特點對比及適用范圍。
1:一對一油煙系統
每家餐飲用戶均獨立設置一套油煙系統,各個用戶之間不合用油煙風管、油煙風機、凈化器。油煙風機可設置于餐飲單元的廚房吊頂內,也可設置于屋面。

2:多對一分散風機油煙系統
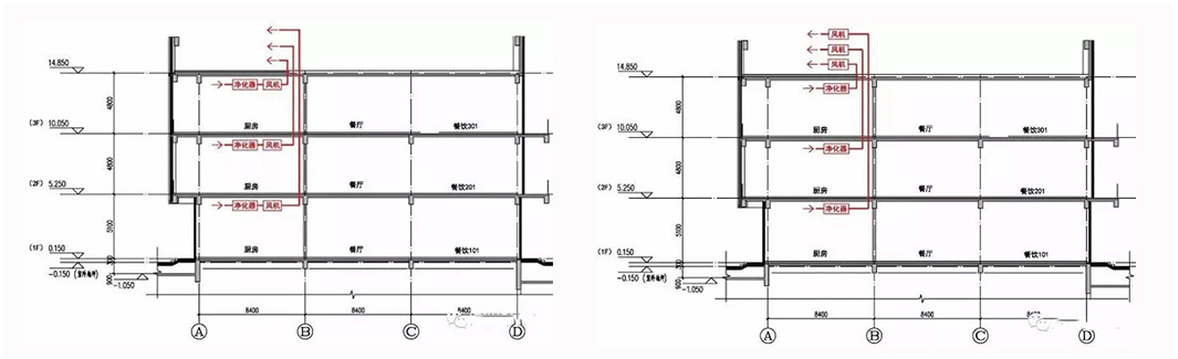
多家餐飲用戶合用一套油煙系統,各個用戶之間合用油煙風管,但各個用戶均獨立設置油煙風機及油煙凈化器。油煙風機及油煙凈化器一般設置于餐飲單元的廚房吊頂內。

3:多對一集中風機油煙系統
多家餐飲用戶合用一套油煙系統,各個用戶之間合用油煙風管、油煙風機,各用戶不合用油煙凈化器(凈化器各戶獨立設置)。油煙風機一般設置于屋面。
油煙風機為各個用戶共用,只有一家或少數若干家餐飲單元需要排油煙時,油煙風機只能滿載運行,油煙風機不能按需運行,風機電耗浪費很大。風機電耗只能按照餐飲面積(或各餐飲用戶的油煙風量)來分攤,不能準確分攤各個用戶的用電量(因無法計量各用戶的開機時間),造成物業公司收費困難。為了解決這一難題,可引入電量分攤系統,該系統可對各個用戶的油煙風量及運行時間進行計量,并準確計算出各個用戶的分攤電量,可解決物業收費難的問題。采用電量分攤系統時,油煙風機可根據實際需求的風量變頻運行,風機的電耗也大幅降低了。

4:各個油煙排放方式的特點對比及適用范圍

5:油煙凈化器
油煙凈化器一般為UV-C光解型及高壓靜電油煙凈化器,這兩種凈化器的初投資低,設備簡單,維護方便,運行費也低,其除油效率都優于國家標準,在工程中得到了廣泛的應用。油煙凈化器一般在廚房內安裝,這樣,進入油煙風管的空氣就比較干凈,可減輕油煙風管清洗的工作量。
UV-C型凈化器利用紫外線分解空氣中的氧分子,產生活性氧,活性氧與氧氣結合,產生臭氧,臭氧對有機物具有極強的氧化作用,可高效的消除油煙及異味,而且還有殺菌的作用。UV-C型凈化器可安裝于油煙罩中,幾乎不占用廚房的空間。
高壓靜電型凈化器設置有高壓靜電場,油煙氣體通過電場時被電離,大部分得以降解碳化。少部分油粒在電場力的作用下,被吸附到極板上,在自身重力的作用下,流到集油盤并排出,余下的微米級油霧能被電場降解。高壓靜電型凈化器有臭氧產生,同時具有殺菌及消除異味的功能。高壓靜電型凈化器可在廚房天花內吊裝(要占用小量的吊頂空間),也可在屋面落地安裝。

6:油煙排放口的位置
經過凈化處理后,油煙尾氣中仍然含有多種有害的物質,因此油煙尾氣必須伸頂在屋面高空排放,并注意遠離新風系統的入口(距離一般需≥20米)。油煙排放口與新風入口在同一高度時,還需注意風向的影響,需避免因刮風而將油煙尾氣吹向新風入口。油煙排放口位于低空或裙房屋面,油煙排放口的上部有人員活動房間的窗戶時,油煙排放口需盡量遠離窗戶(距離一般需≥30米),以避免油煙污染。